全校师生员工:
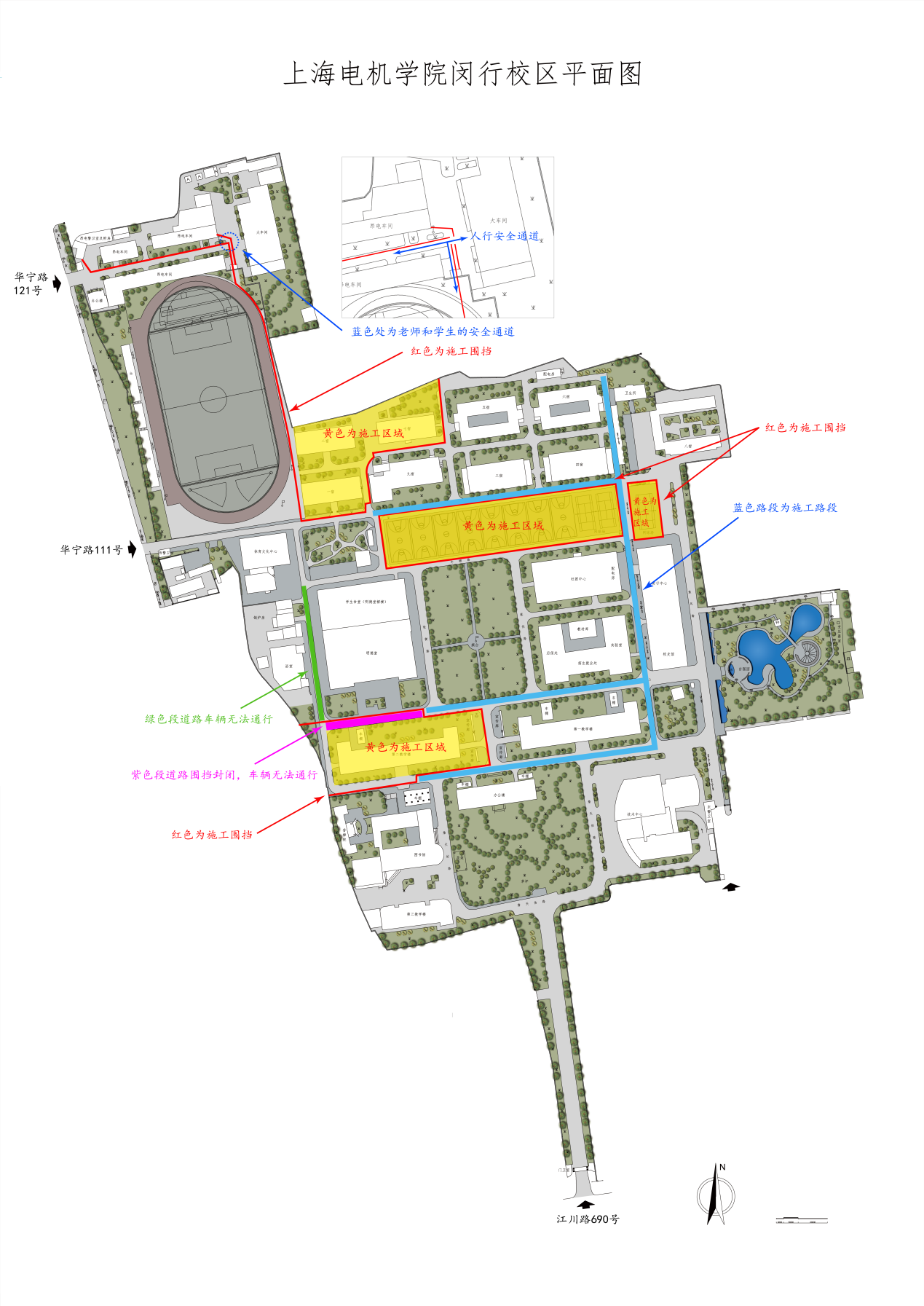
闵行校区修缮(第一批)工程项目于2023年7月1日开始室外总体施工主要内容包括室外强弱电排管敷设、消防管道敷设、篮球场与网球场修缮等。
现场施工涉及的内部道路有居里路、欧姆路、爱迪生路、爱因斯坦路、詹天佑东路,(示意图中蓝色道路为地下管线施工路段,会分不同日期施工,期间会摆放禁行标志临时封闭),施工日期至2023年底。
校园建设是学校未来的发展基础,请广大师生充分理解并大力支持。因施工给大家带来的不便,敬请谅解。如对施工过程中安全工作有建议意见,请及时反馈给我们。
上海建工二建集团有限公司 王经理 13816817922
上海景康工程项目管理有限公司 陈经理 15302158665
上海昂电后勤服务有限公司 朱经理 13311889908
上海电机学院保卫处 李老师 13501768826
上海电机学院基建处 施老师 13817798806
基建处、保卫处、总务部
2023年6月30日
